Bewohnerzimmer
Bewohnerzimmer
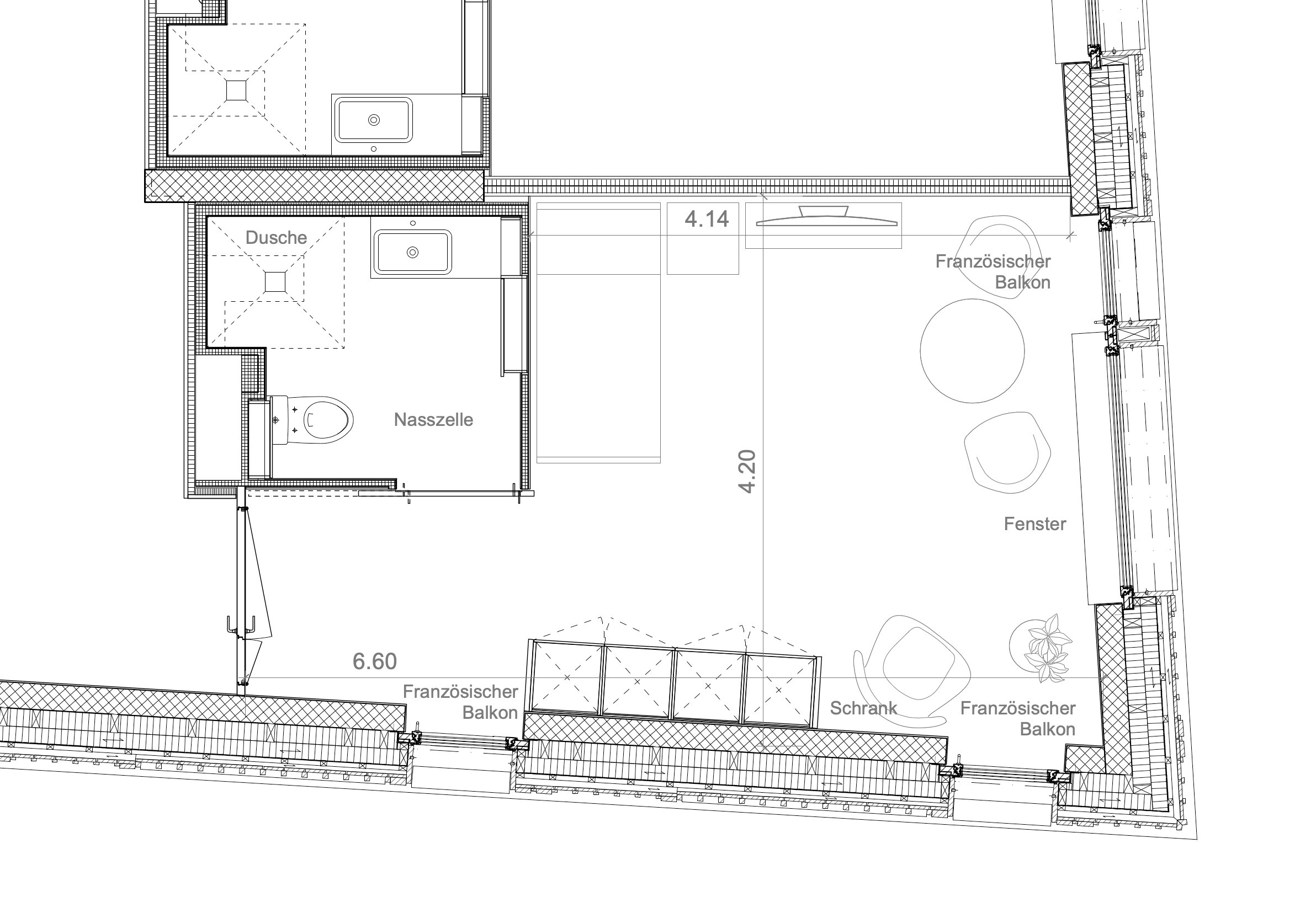
Das Pflege- und Betreuungszentrum Büelriet überzeugt mit moderner Grundausstattung. Die Zimmer können mit eigenen Möbeln und Erinnerungsstücken zu einer Wohlfühloase umgestaltet werden. Mit 25 Quadratmetern Wohnfläche sind die Räumlichkeiten überdurchschnittlich gross. Die Zimmer bieten:
- moderne, höhenverstellbare Betten
- mobiler Nachttisch
- viertüriger Einbauschrank mit grossem Platzangebot und abschliessbarer Schublade
- schwellenlose Dusche, WC und Lavabo mit grosszügigem Spiegelschrank
- Telefon-, Radio-, Fernseh- und Internetanschluss
- Französischer Balkon
- Tagvorhänge und Rollos
Unsere Zimmerpreise sind einheitlich, unabhängig von der Lage und Form.
.
Dokumente
| Name | Download | ||
|---|---|---|---|
| Grundriss-Bewohnerzimmer.jpg (JPG, 537 kB) | Download | 0 | Grundriss-Bewohnerzimmer.jpg |
| Anmeldung_Altersheim.pdf (PDF, 554 kB) | Download | 1 | Anmeldung_Altersheim.pdf |
| Taxordnung ab 01.01.2025 (PDF, 4.16 MB) | Download | 2 | Taxordnung ab 01.01.2025 |